Ciempozuelos R6
- Inicio
- Comunidad de Madrid
- Ciempozuelos R6
Ciempozuelos - Madrid
en Captación de Socios
Desde 135.730€ + IVA - Pisos
“COMPLEJO RESIDENCIAL CIEMPOZUELOS”
El complejo Residencial Ciempozuelos, se ubicará en el Sector 6 Cantarranas de Ciempozuelos, tras el acuerdo alcanzado con la junta de compensación para el desarrollo de unas 430 viviendas, sobre 9 manzanas, en régimen cooperativo, que va a permitir la auto promoción de vivienda asequible y de calidad.
Se desarrollará la totalidad del ámbito, mediante el modelo cooperativo, donde el socio pretendemos que sea participe desde el primer momento.
Los suelos son ya finalistas a falta de urbanizar, actividad que se pretende simultanear al contar con la aceptación del Ayuntamiento de Ciempozuelos.
En dicho desarrollo se contará con dos tipologías de vivienda, vivienda plurifamiliar y vivienda unifamiliar, en cuanto a las manzanas donde se ubicarán las viviendas en altura, contarán de planta baja + tres, + planta ático, Las manzanas tendrán forma de “U”, dejando en su zona central un espacio habilitado para piscina y zonas comunes de recreo o juegos infantiles.
Este ámbito a su vez contará con todos los usos mezclados y repartidos en las 9 manzanas, contando con:
VPPB (vivienda protección pública básica)
VPPL,(vivienda protección pública precio limitado)
VCL (vivienda colectiva libre )
VUL (vivienda unifamiliar libre)
Permitiendo cubrir las necesidades de la demanda casi en su totalidad, al contar con una amplia horquilla de valores de adjudicación.
Los residenciales contarán con una planta de sótano y baja, donde se ubicará los trasteros, garajes y zonas comunes -piscina-, quedando en planta alta las viviendas, generando unos espacios muy ordenados y que nos van a permitir optimizar al máximo el proyecto en beneficio del socio.
Tenemos que recalcar el apoyo que hemos recibido por parte del Ayuntamiento de Ciempozuelos a que este proyecto se haga una realidad.
“RESIDENCIAL VIVIENDA COLECTIVA O MULTIFAMILIAR”
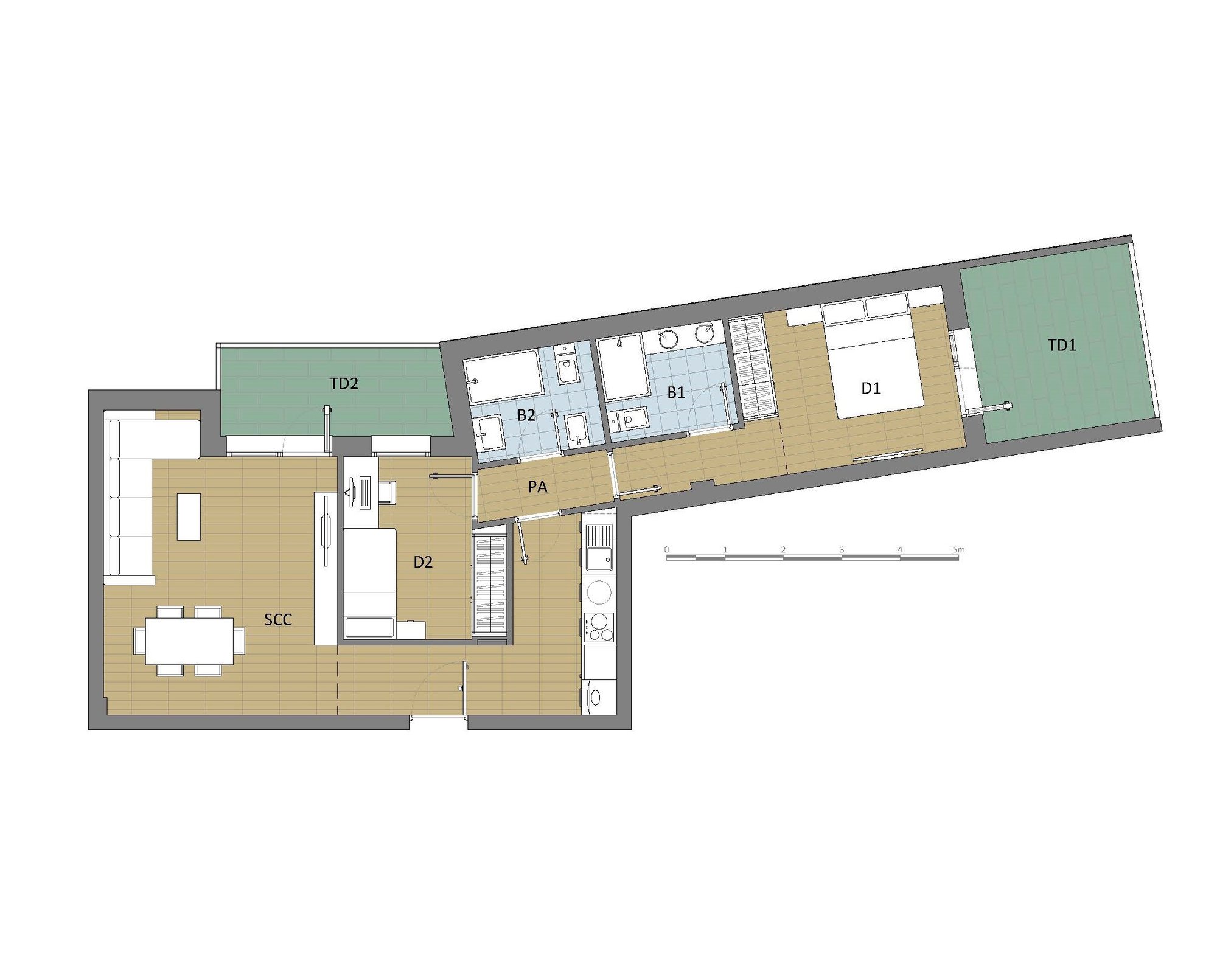
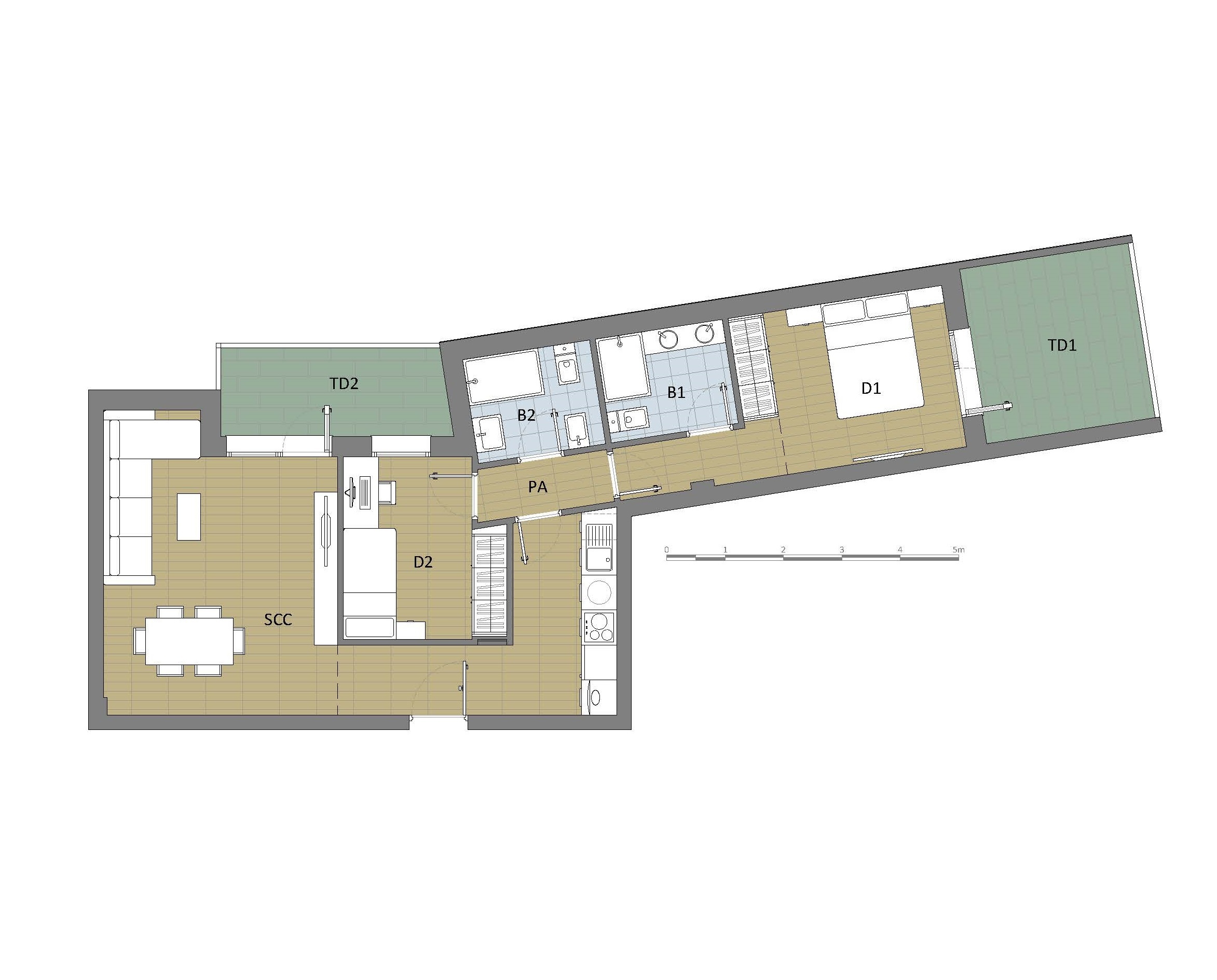
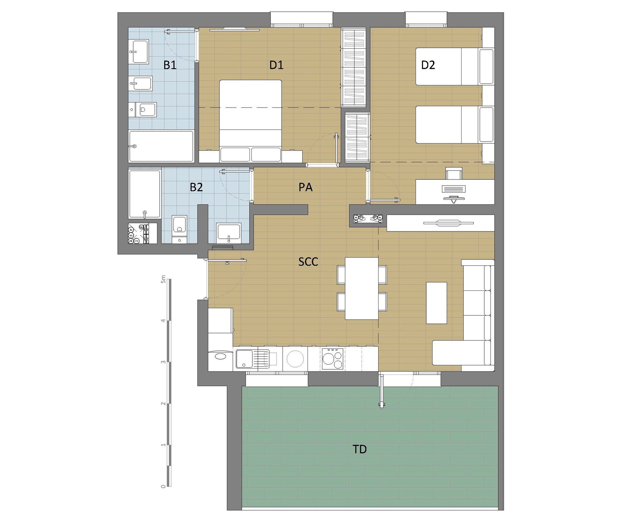
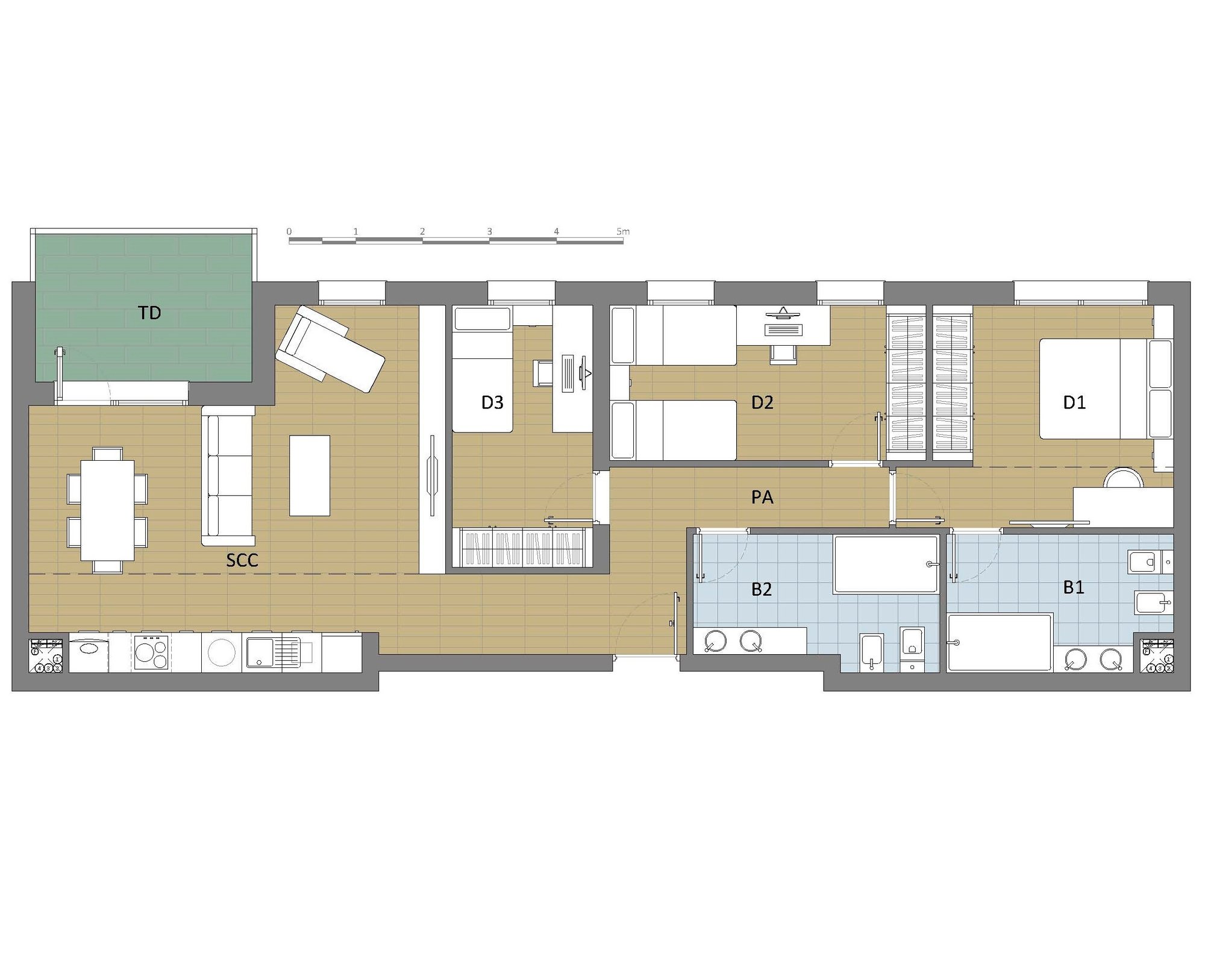
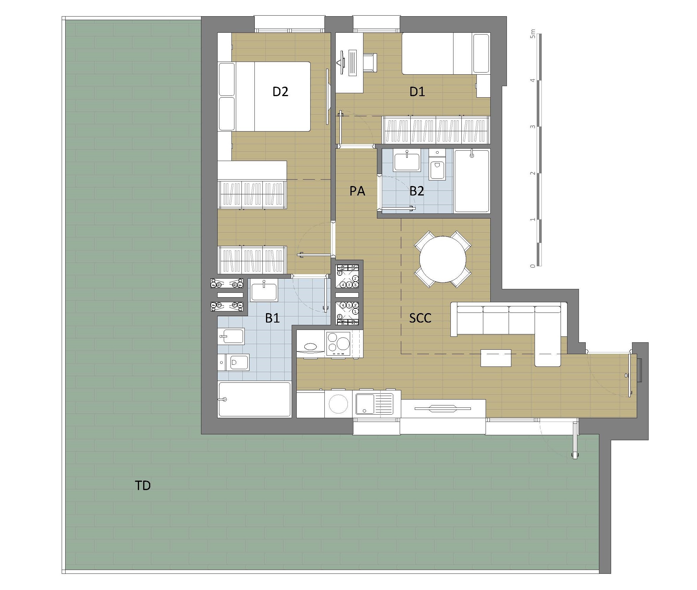
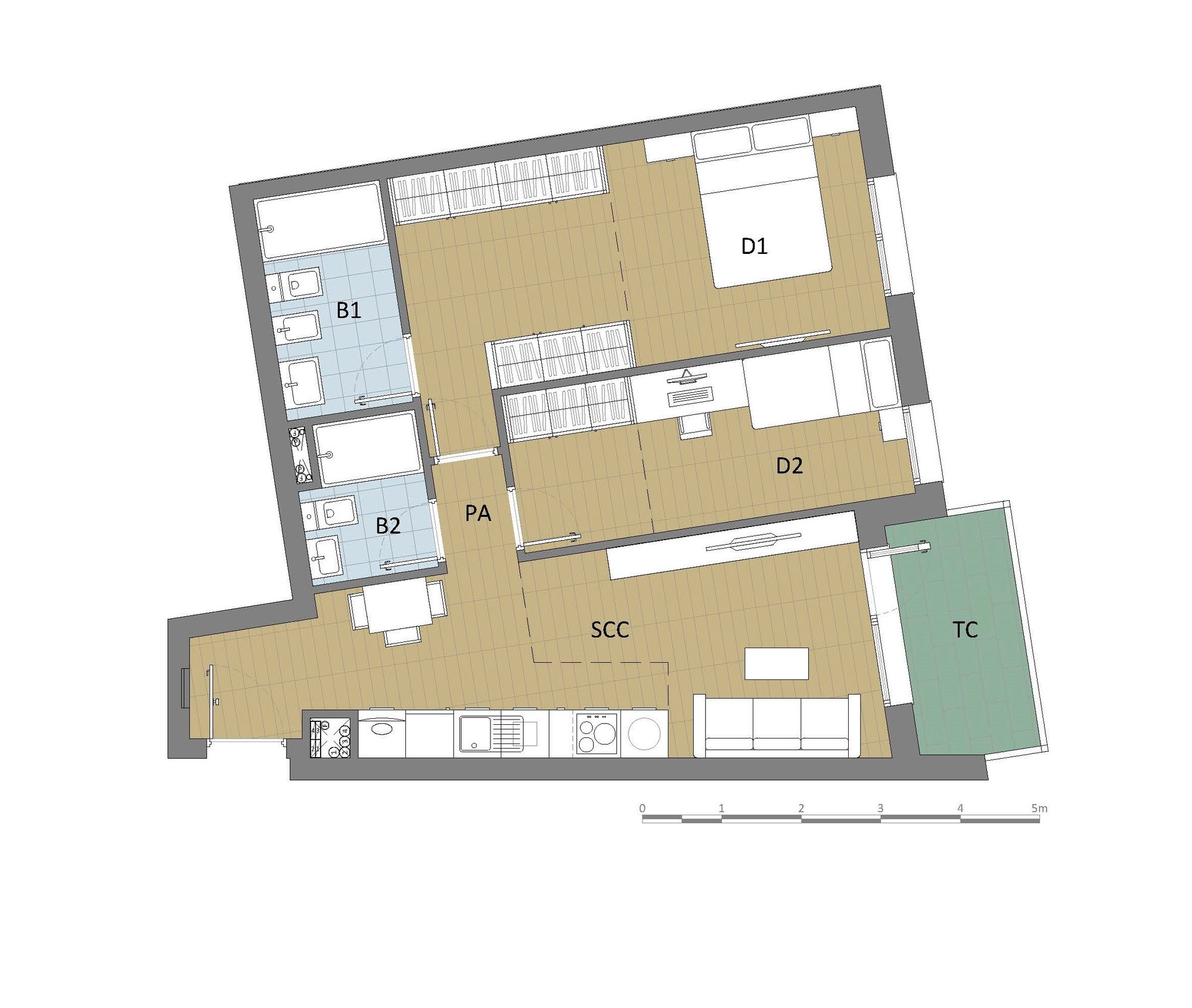
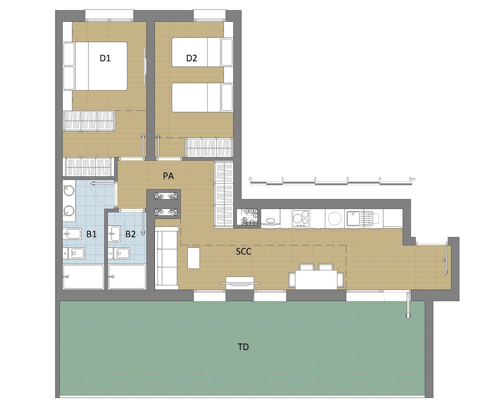
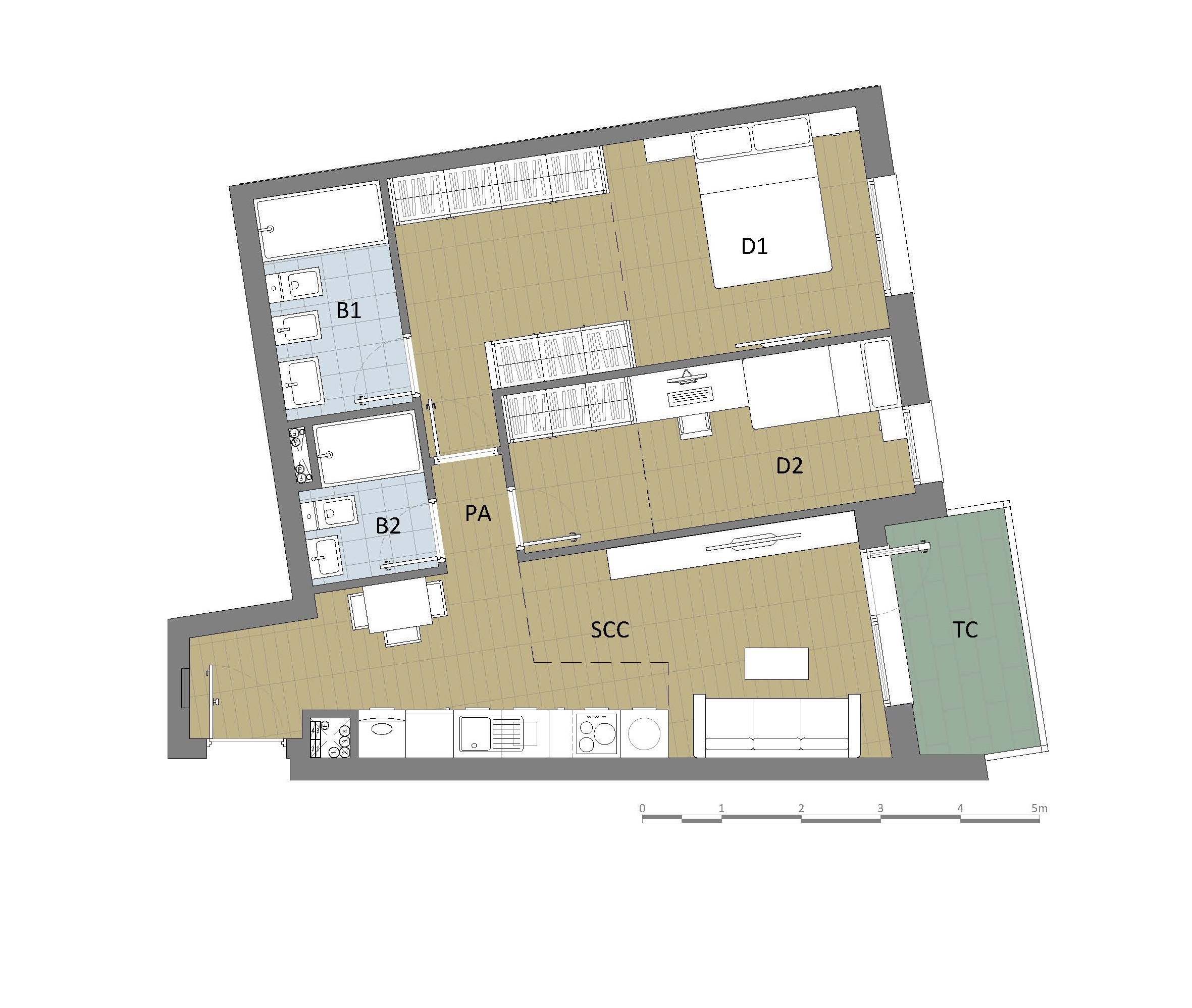
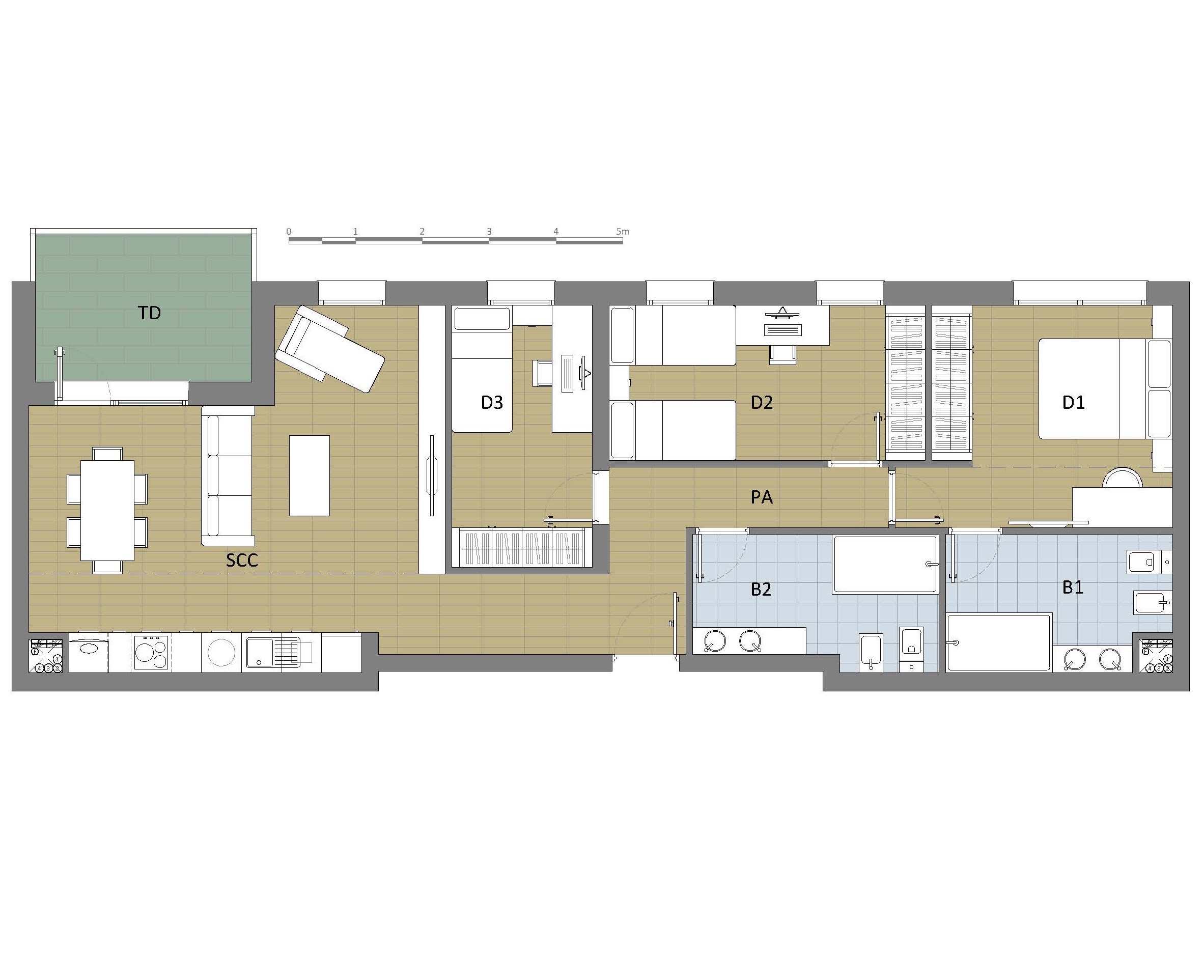
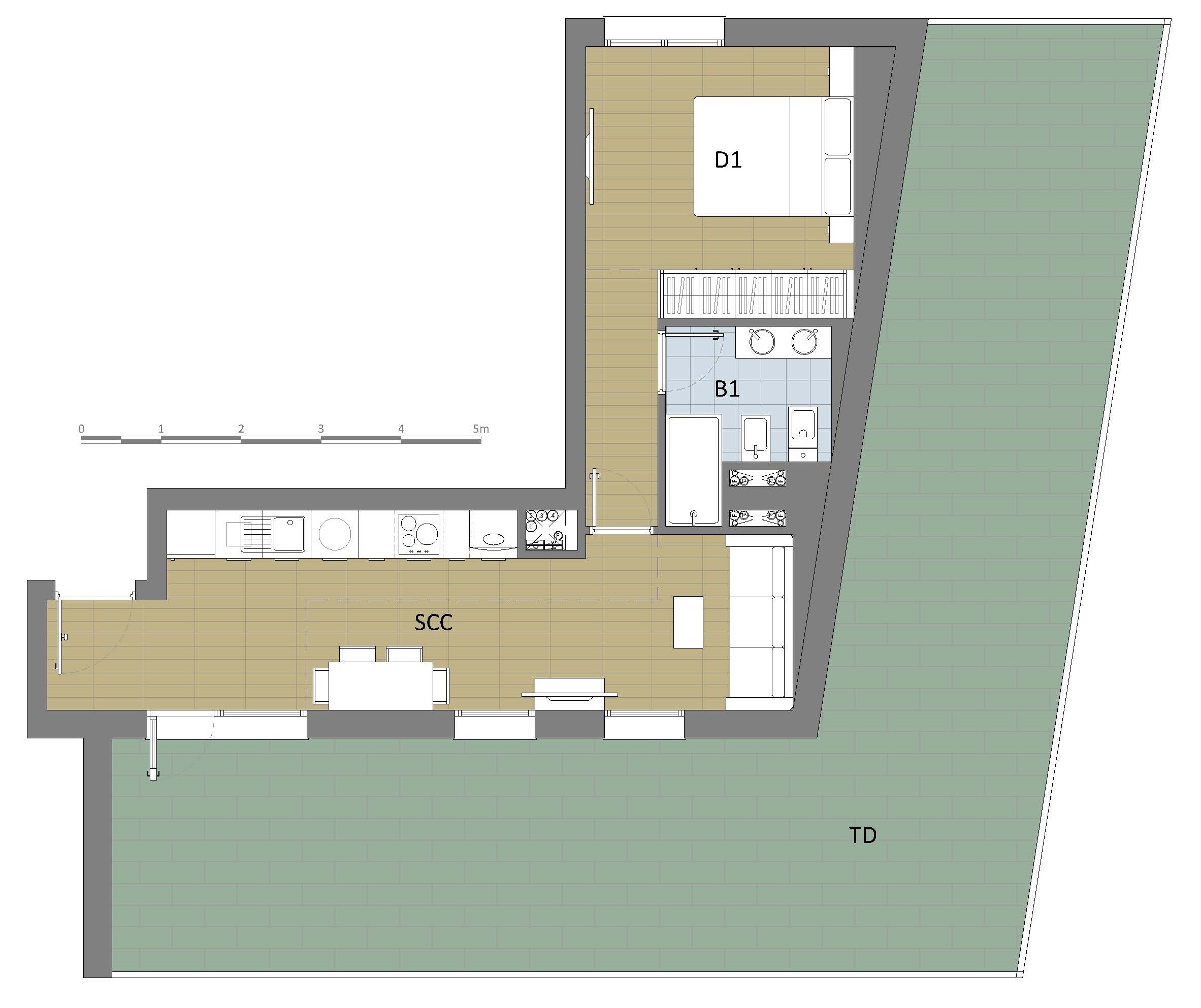
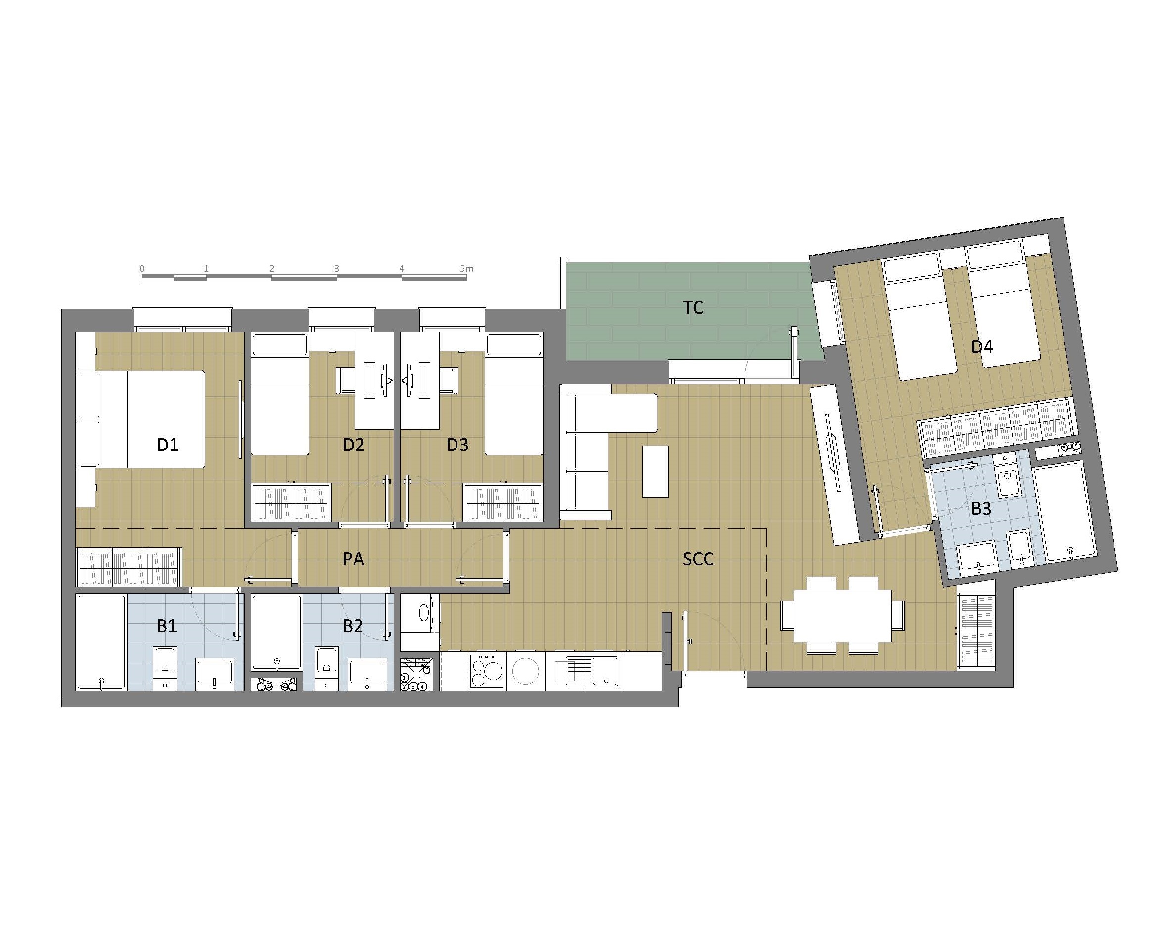
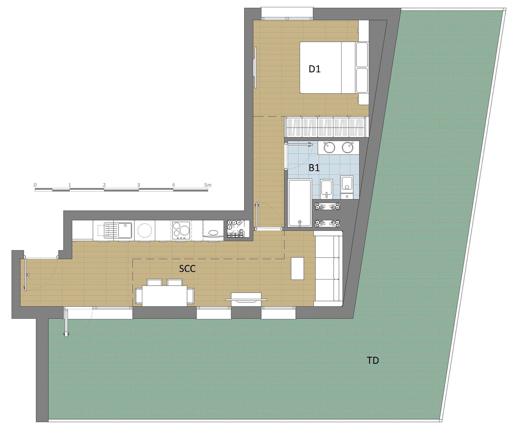
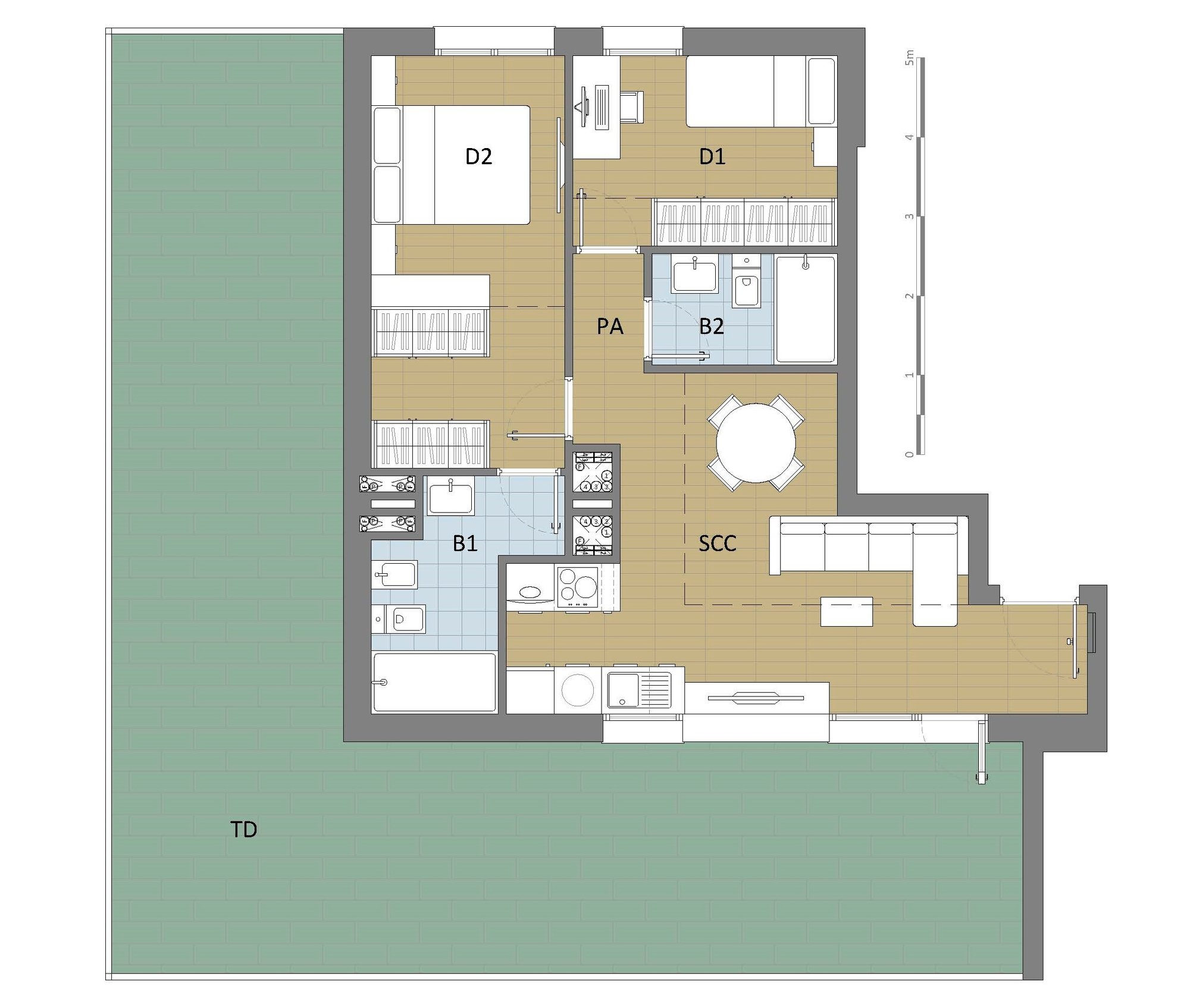
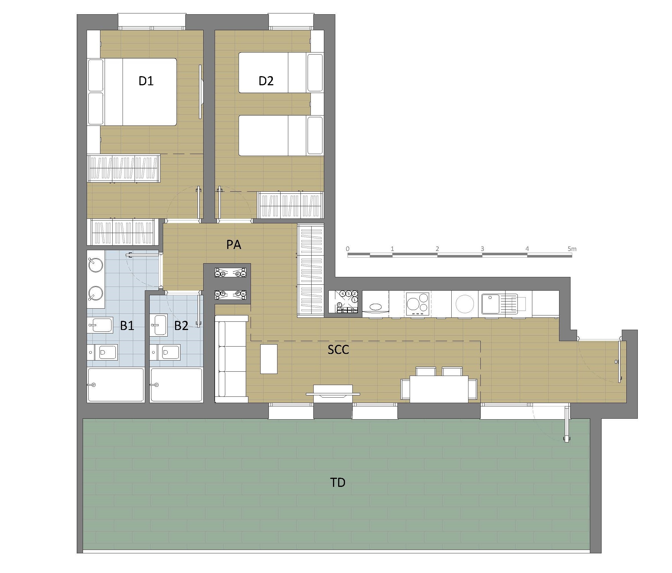
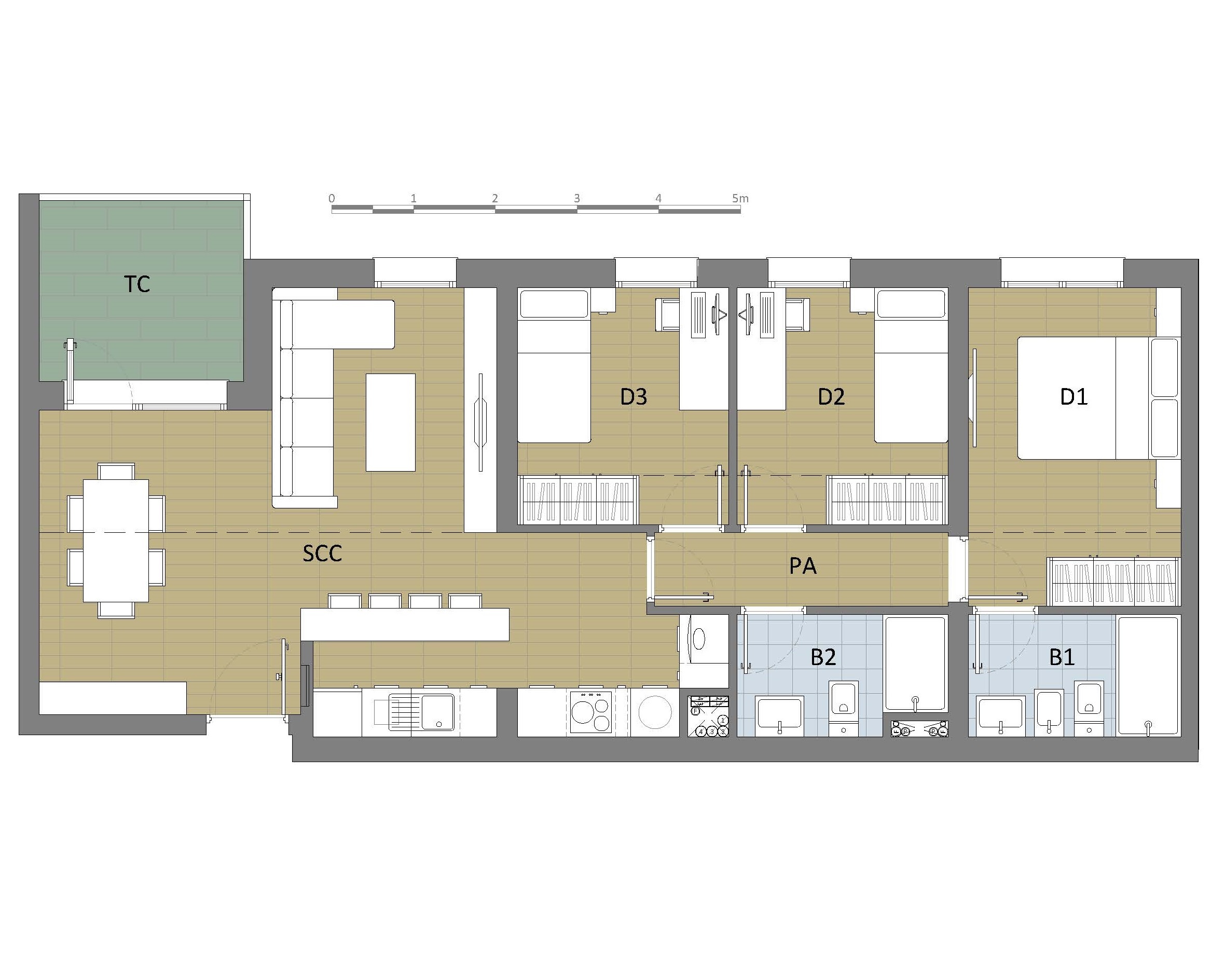
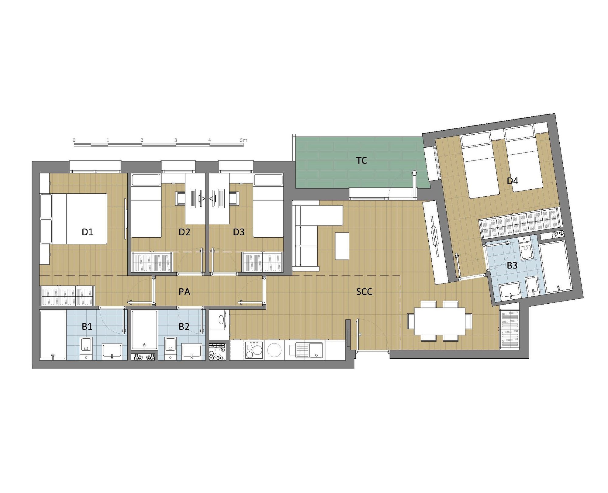
En cuanto a cada uno de los 9 residenciales, ya sean de renta libre, o protegida contarán con viviendas de 1, 2, 3, 4 y 5 dormitorios, con al menos una plaza de garaje y trastero.
Las viviendas contarán con un diseño moderno, diferenciando la zona de noche y la de día, para un mayor confort, espacios multifuncionales de salón-cocina que permita mejorar las relaciones familiares, todas las viviendas a su vez, contarán con una terraza vividera.
Estos residenciales y gracias a las consultas llevadas a cabo entre los suscritos en la plataforma cooperopen.org, ha permitido diseñar una variedad de viviendas que van desde viviendas de 1 dormitorio a 5 dormitorios, con 2 o incluso 3 cuartos de baño.
Detalles técnicos: Estos residenciales buscan la calidad constructiva y para ello se ha decantado por la CONSTRUCCIÓN INDUSTRIALIZADA, permitiendo conseguir una reducción de los plazos de ejecución y un ahorro en los costes, todo ello cumpliendo con el CTE , Normas técnicas de la CAM para las VPP y el PGOU de Ciempozuelos y por supuesto llegando a los más altos estándares de calidad: Calificación energética A , acreditada en el Certificado de Eficiencia Energética , gracias a la instalación de aerotermia para climatización y ACS y a un gran aislamiento.
POR UNA VIVIENDA DE CALIDAD, ASEQUIBLE Y A PRECIO DE COSTE.
INFORMACIÓN ADJUNTA
DISPONIBILIDAD
DISPONIBILIDAD
| TIPO DE VIVIENDA | PLANTA | VIVIENDA | LETRA | SUPERFICIE CONSTRUIDA CON ZZ.CC (M2) | COSTE VIVIVENDA |
| PORTAL 1 | |||||
| VPPB | PLANTA 1 | T- 3D 01 | A | 81,31 | 159.156,25 |
| VPPB | T- 3D 02 | B | 94,74 | 183.666,85 | |
| VPPB | T-3D 02 | C | 94,74 | 183.666,85 | |
| VPPB | T-3D 01 | D | 81,31 | 159.156,25 | |
| VPPB | PLANTA 2 | T-3D 01 | A | 81,31 | 159.156,25 |
| VPPB | T-3D 02 | B | 94,74 | 183.666,85 | |
| VPPB | T-3D 02 | C | 94,74 | 183.666,85 | |
| VPPB | T-3D 01 | D | 81,31 | 159.156,25 | |
| VPPB | PLANTA 3 | T-3D 01 | A | 81,31 | 159.156,25 |
| VPPB | T-3D 02 | B | 94,74 | 183.666,85 | |
| VPPB | T-3D 02 | C | 94,74 | 183.666,85 | |
| VPPB | T-3D 01 | D | 81,31 | 159.156,25 | |
| VPPB | ÁTICO | A-3D 11 | A | 80,94 | 176.010,69 |
| VPPB | A- 2D 13 | B | 89,94 | 178.840,65 | |
| VPPB | A- 2D 14 | C | 76,28 | 184.916,13 | |
| PORTAL 2 | |||||
| VPPB | PLANTA 1 | T-2D 05 | A | 66,45 | 135.730,18 |
| VPPB | T-2D 06 | B | 77,84 | 159.156,25 | |
| VPPB | T-4D 07 | C | 107,75 | 204.923,83 | |
| VPPB | T-2D 08 | D | 68,07 | 142.237,42 | |
| VPPB | PLANTA 2 | T-2D 05 | A | 66,45 | 135.730,18 |
| VPPB | T-2D 06 | B | 77,84 | 159.156,25 | |
| VPPB | T-4D 07 | C | 107,75 | 204.923,83 | |
| VPPB | T-2D 08 | D | 68,07 | 142.237,42 | |
| VPPB | PLANTA 3 | T-2D 05 | A | 66,45 | 135.730,18 |
| VPPB | T-2D 06 | B | 77,84 | 159.156,25 | |
| VPPB | T-4D 07 | C | 107,75 | 204.923,83 | |
| VPPB | T-2D 08 | D | 68,07 | 142.237,42 | |
| VPPB |
ÁTICO |
A-1D 15 | A | 60,32 | 158.912,54 |
| VPPB | A-2D 16 | B | 83,96 | 176.617,34 | |
| VPPB | A-2D 17 | C | 79,19 | 168.205,52 | |
| PORTAL 3 | |||||
| VPPB | PLANTA 1 | T- 3D 01 | A | 81,31 | 159.156,25 |
| VPPB | T- 3D 02 | B | 94,74 | 183.666,85 | |
| VPPB | T- 3D 02 | C | 94,74 | 183.666,85 | |
| VPPB | T- 3D 01 | D | 81,31 | 159.156,25 | |
| VPPB | PLANTA 2 | T- 3D 01 | A | 81,31 | 159.156,25 |
| VPPB | T- 3D 02 | B | 94,74 | 183.666,85 | |
| VPPB | T- 3D 02 | C | 94,74 | 183.666,85 | |
| VPPB | T- 3D 01 | D | 81,31 | 159.156,25 | |
| VPPB | PLANTA 3 | T- 3D 01 | A | 81,31 | 159.156,25 |
| VPPB | T- 3D 02 | B | 94,74 | 183.666,85 | |
| VPPB | T- 3D 02 | C | 94,74 | 183.666,85 | |
| VPPB | T- 3D 01 | D | 81,31 | 159.156,25 | |
| VPPB |
ÁTICO |
A -3D 11 | A | 80,94 | 176.010,69 |
| VPPB | A - 3D 12 | B | 113,48 | 217.938,31 | |
| VPPB | A - 3D 11 | C | 80,94 | 176.010,69 | |
| PORTAL 4 | |||||
| VPPB |
PLANTA 1 |
T- 3D 09 | A | 106,33 | 206.171,05 |
| VPPB | T- 3D 10 | B | 99,47 | 192.451,62 | |
| VPPB | PLANTA 2 | T- 3D 09 | A | 106,33 | 206.171,05 |
| VPPB | T- 3D 10 | B | 99,47 | 192.451,62 | |
| VPPB | PLANTA 3 | T- 3D 09 | A | 106,33 | 206.171,,05 |
| VPPB | T- 3D 10 | B | 99,47 | 192.451,62 | |
| VPPB | ÁTICO | A- 2D 18 | A | 89,23 | 187.207,98 |
| VPPB | A- 1D 19 | B | 52,34 | 138.913,5176 | |
| PORTAL 5 | |||||
| VPPB | PLANTA 1 | A | 84,23 | 160.783,06 | |
| VPPB | B | 104,24 | 195.813,70 | ||
| VPPB | C | 94,74 | 183.666,85 | ||
| VPPB | D | 81,31 | 159.156,25 | ||
| VPPB | PLANTA 2 | A | 84,23 | 160.783,06 | |
| VPPB | B | 104,24 | 195.813,70 | ||
| VPPB | C | 94,74 | 183.666,85 | ||
| VPPB | D | 81,31 | 159.156,25 | ||
| VPPB | PLANTA 3 | A | 84,23 | 160.783,06 | |
| VPPB | B | 104,24 | 195.813,70 | ||
| VPPB | C | 94,74 | 183.666,85 | ||
| VPPB | D | 81,31 | 159.156,25 | ||
| VPPB | ÁTICO | A | 60,75 | 155.418,39 | |
| VPPB | B | 113,48 | 217.938,31 | ||
| VPPB | C | 80,94 | 176.10,69 | ||
Características Destacadas
Certificado Energético

