Residencial L´Eliana
- Inicio
- Comunidad Valenciana
- Residencial L'Eliana
L´Eliana (Valencia)
en Captación de Socios
Desde 133.065€ + IVA
RESIDENCIAL L`ELIANA
El Registro de Demandantes de Vivienda y Suelo de CONCOVI (Confederación de Cooperativas de Vivienda y Rehabilitación de España) da a conocer el “L´Eliana”
El proyecto arquitectónico propone un edificio de viviendas en forma de “U”, con orientación predominante hacia el sureste, que organiza su estructura alrededor de un espacio central abierto, creando una gran zona pública definida por amplias zonas comunes con piscina, zona infantil y áreas ajardinadas.
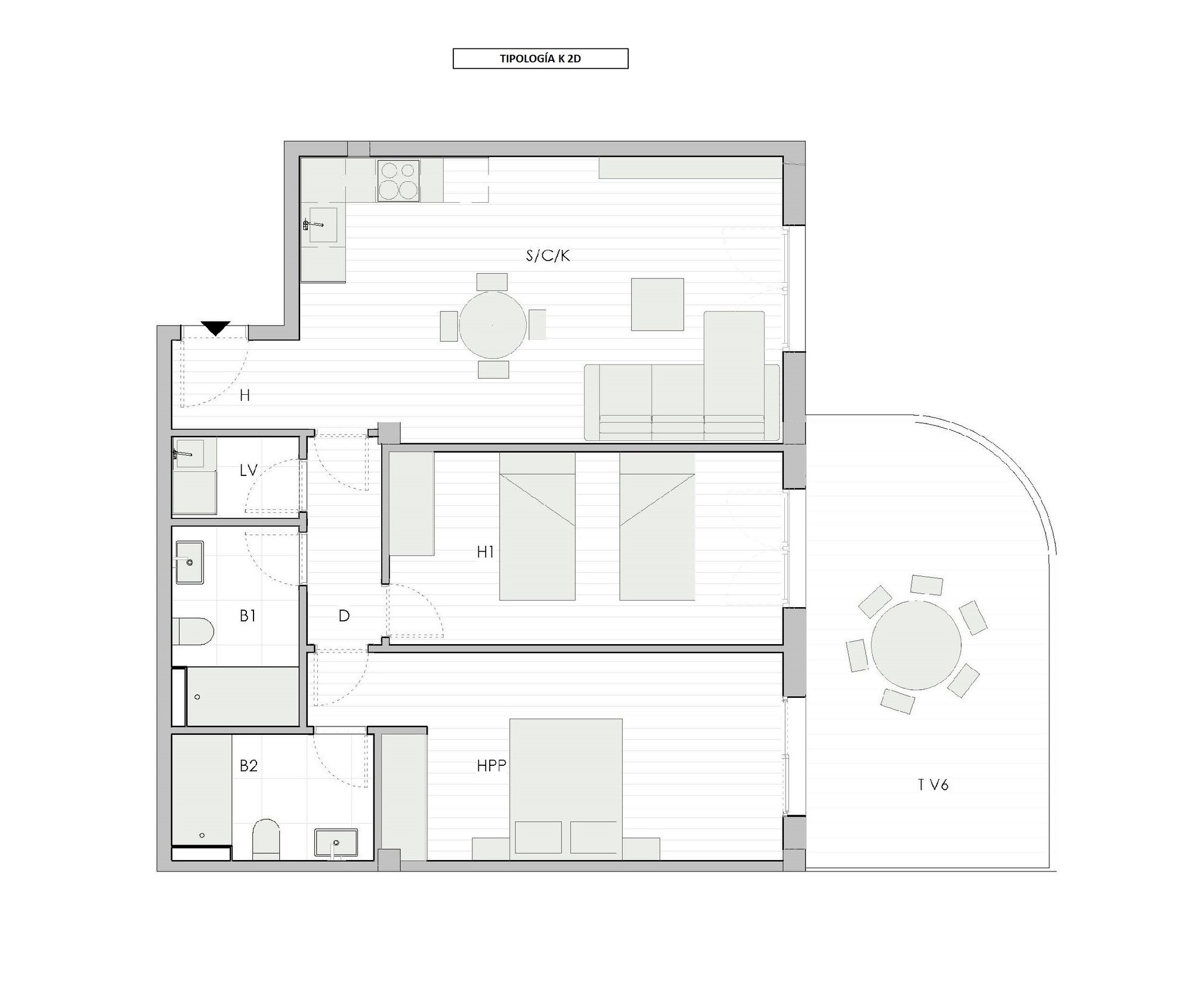
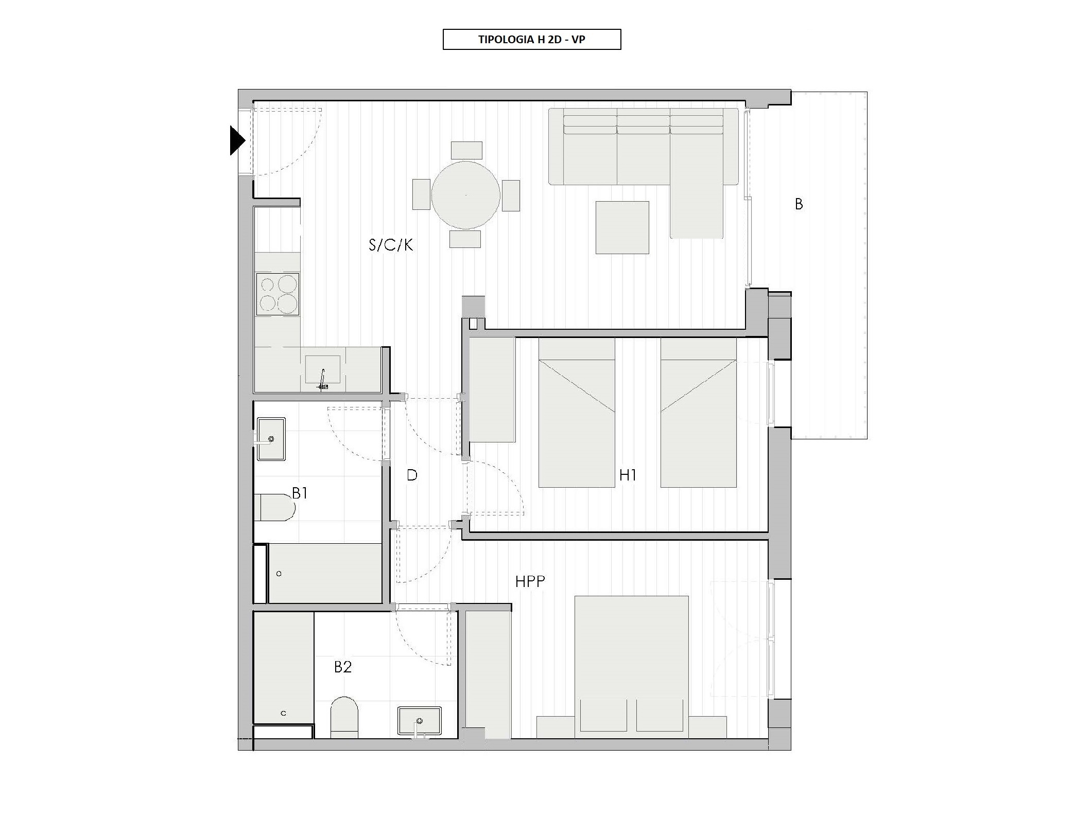
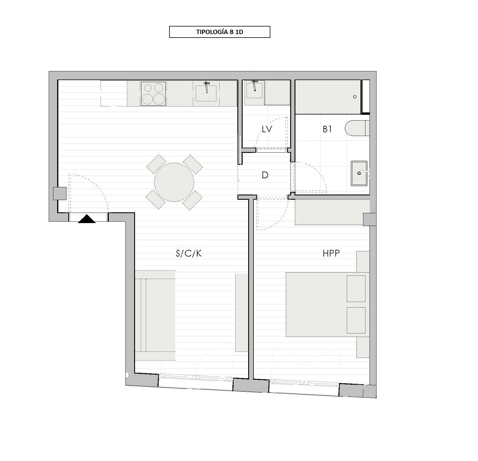
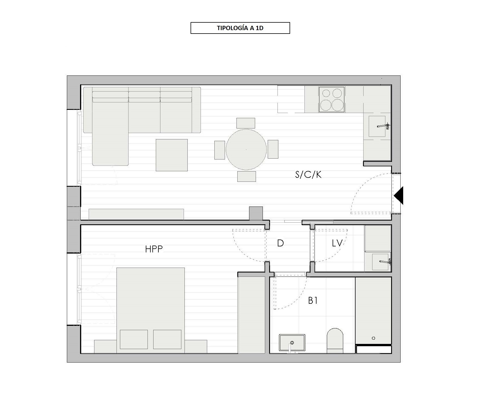
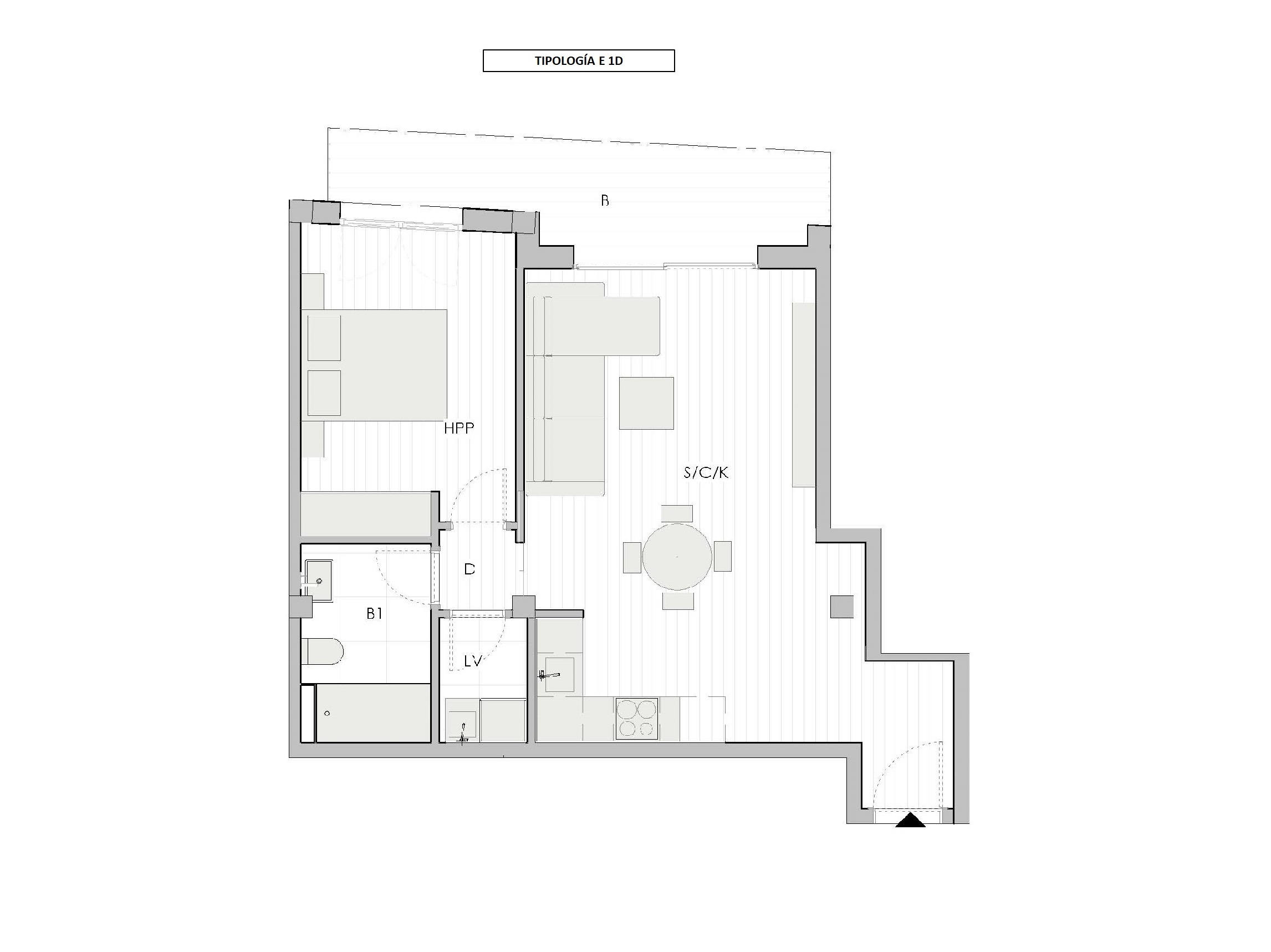
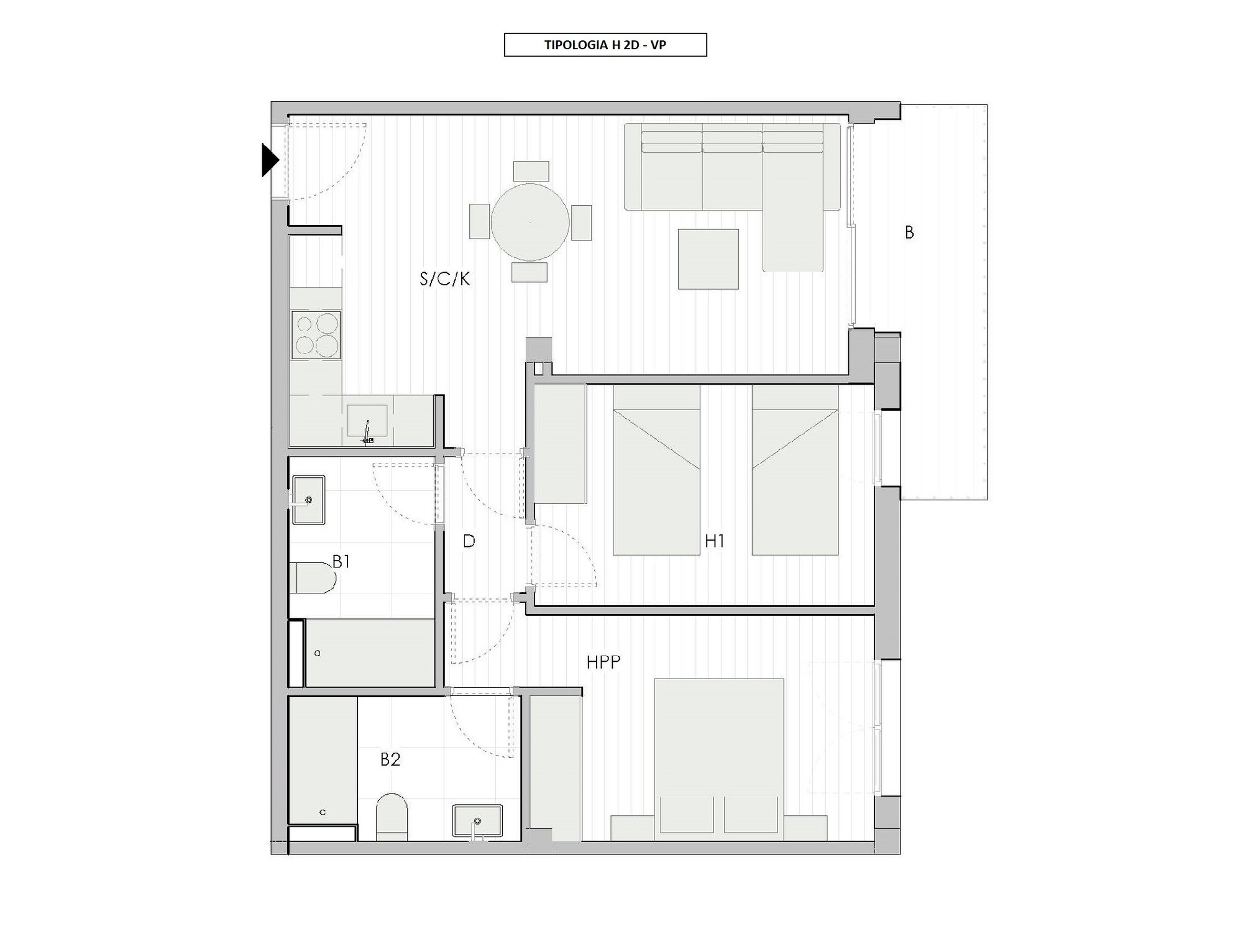
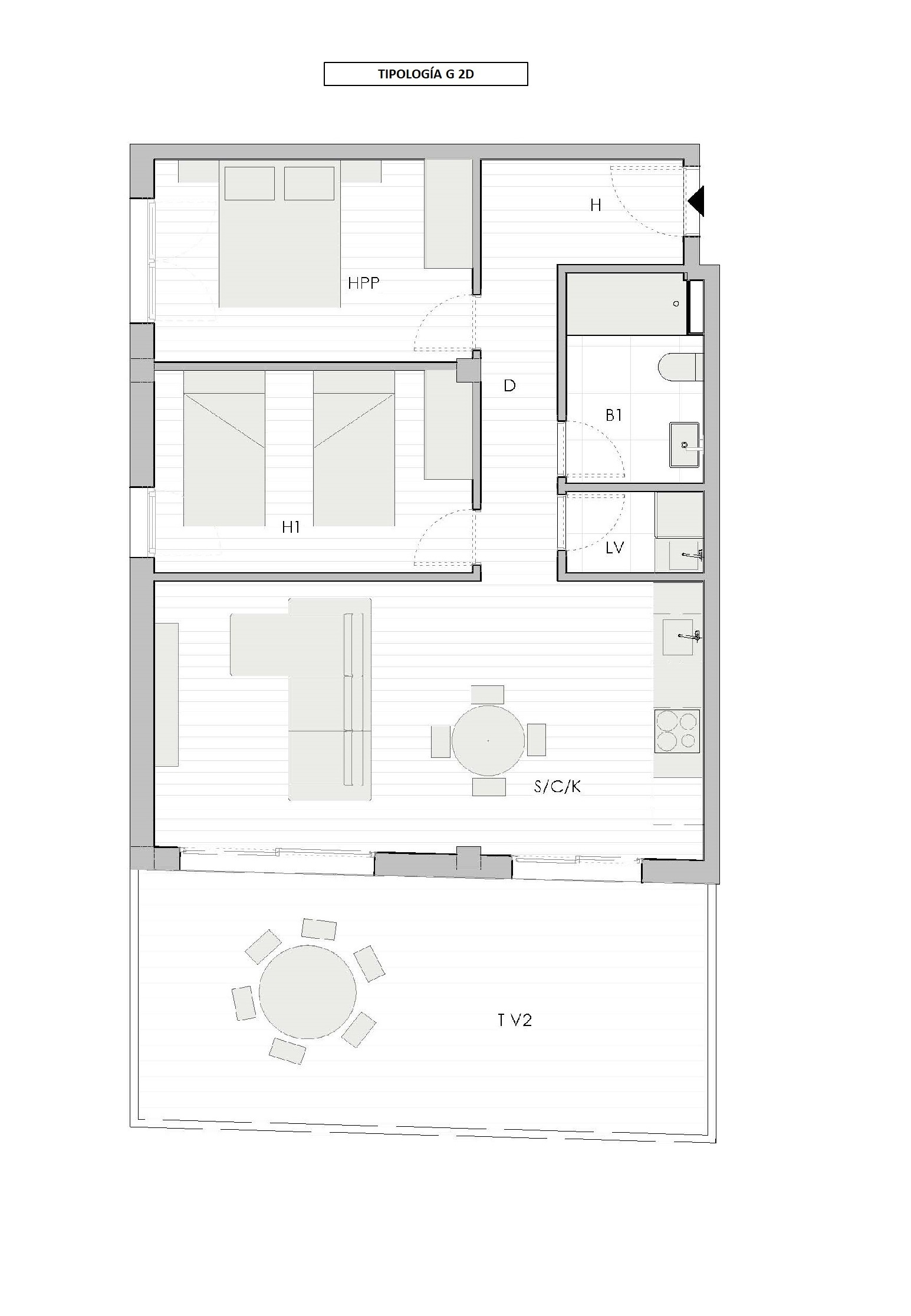
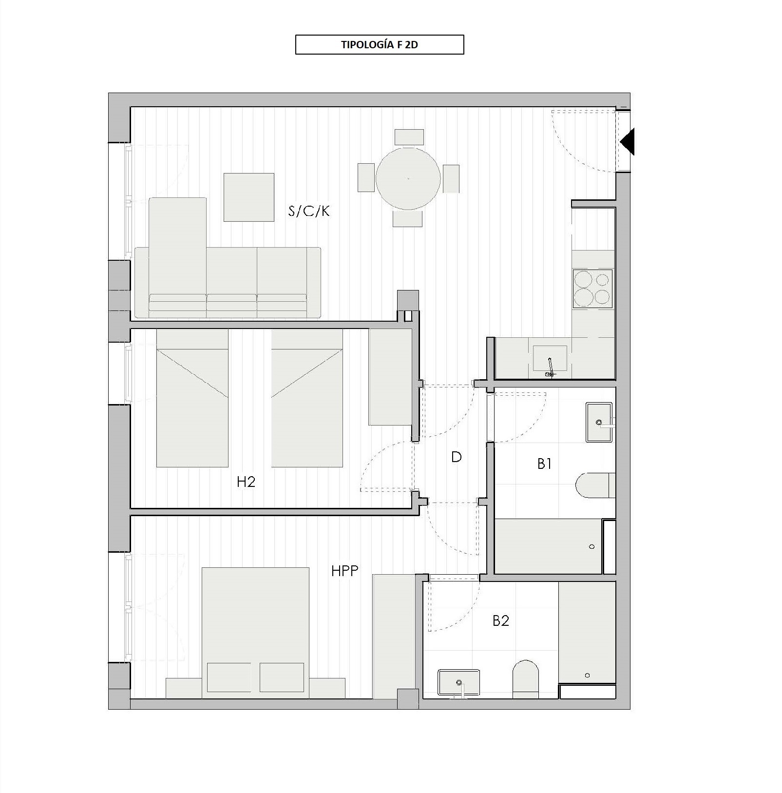
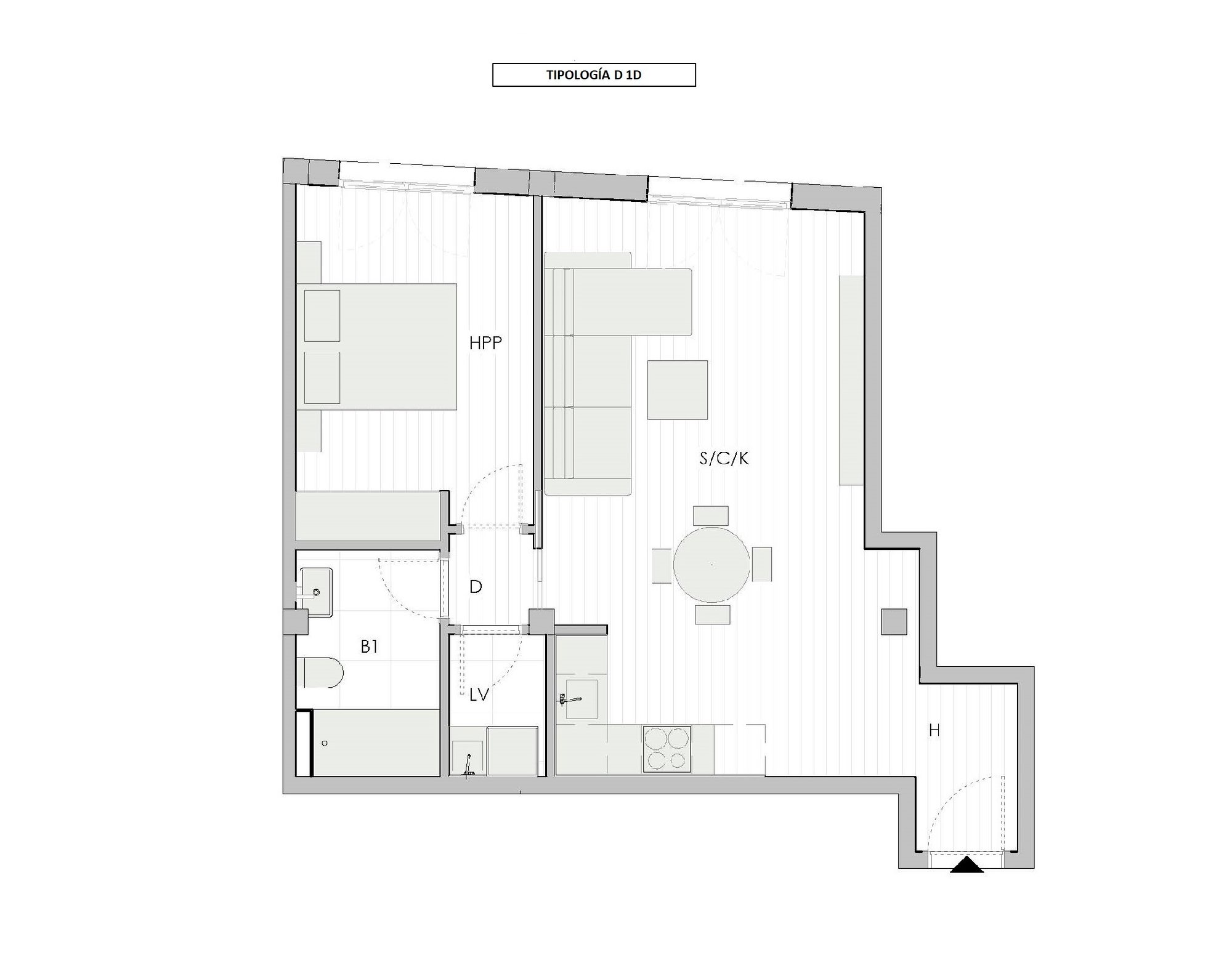
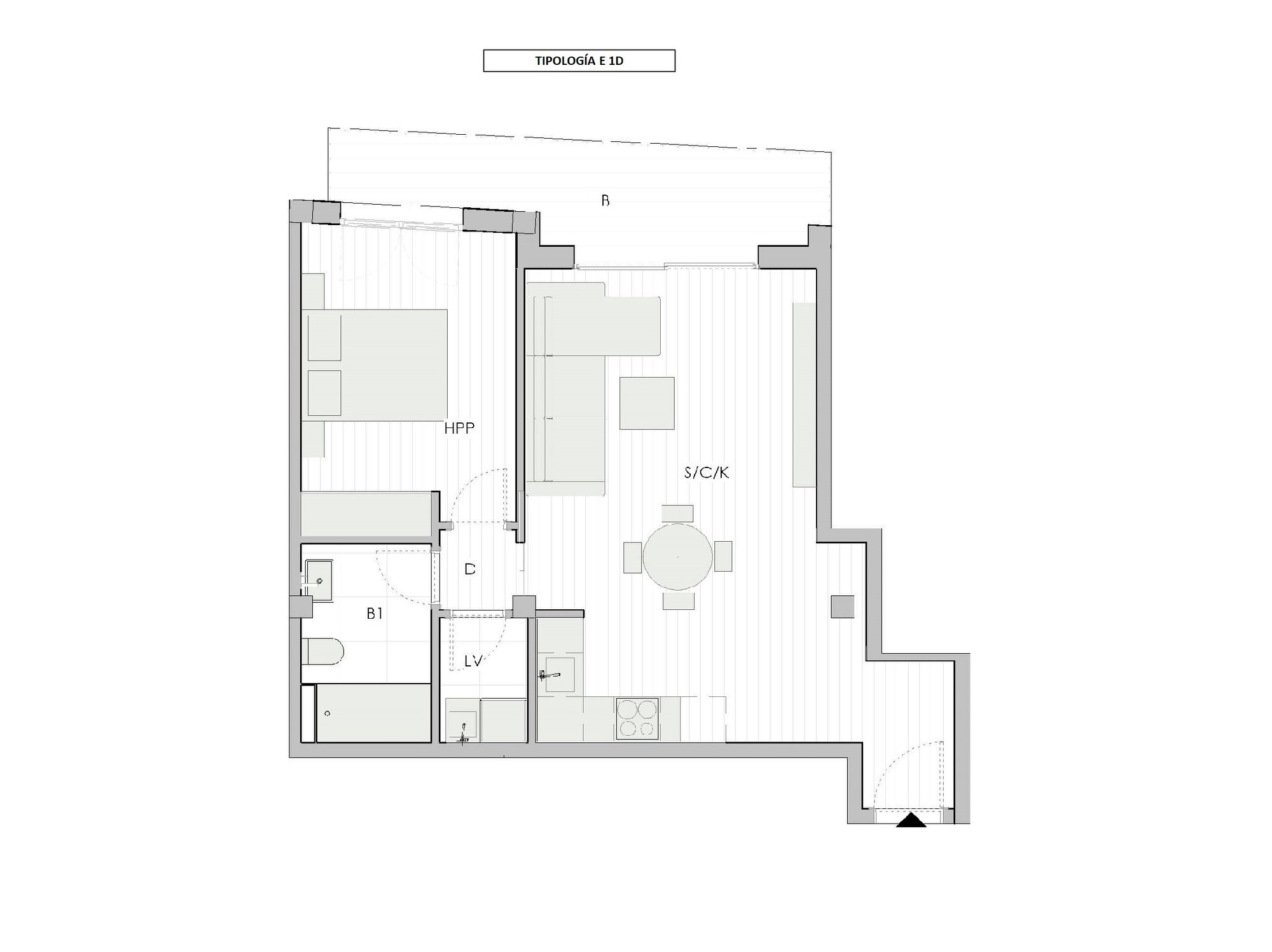
En planta baja y planta primera se ubican las viviendas de protección oficial, que han sido diseñadas con un enfoque especial para ofrecer una calidad de vida excelente. Cada una de estas viviendas ha sido pensada para aprovechar al máximo los espacios y generar sensaciones de amplitud y confort. Estas viviendas destacan por la integración de un salón-comedor-cocina espacioso que favorecen la funcionalidad y la convivencia. Además, se ha puesto especial énfasis en el diseño de las áreas comunes, creando un entorno accesible y armónico que fomenta la interacción social y el bienestar de los residentes. La mayor parte de estas viviendas cuentan con espacios exteriores privados, en forma de terrazas en planta baja o amplios balcones en planta primera.
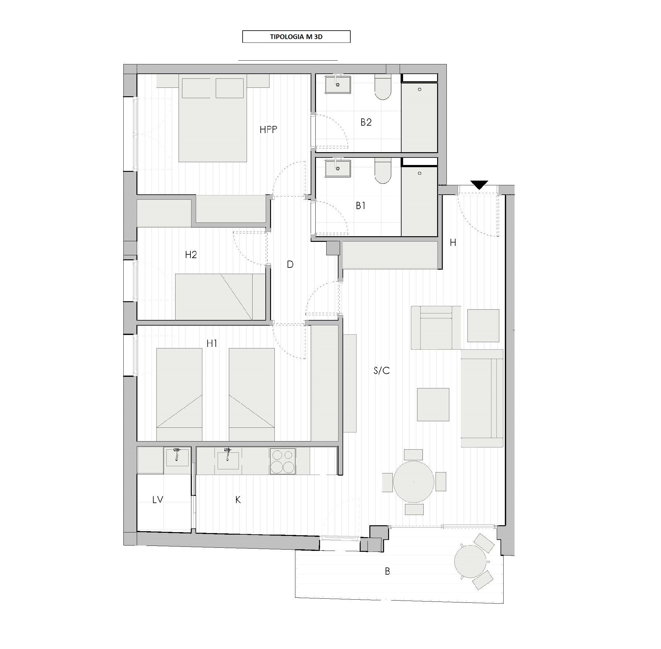
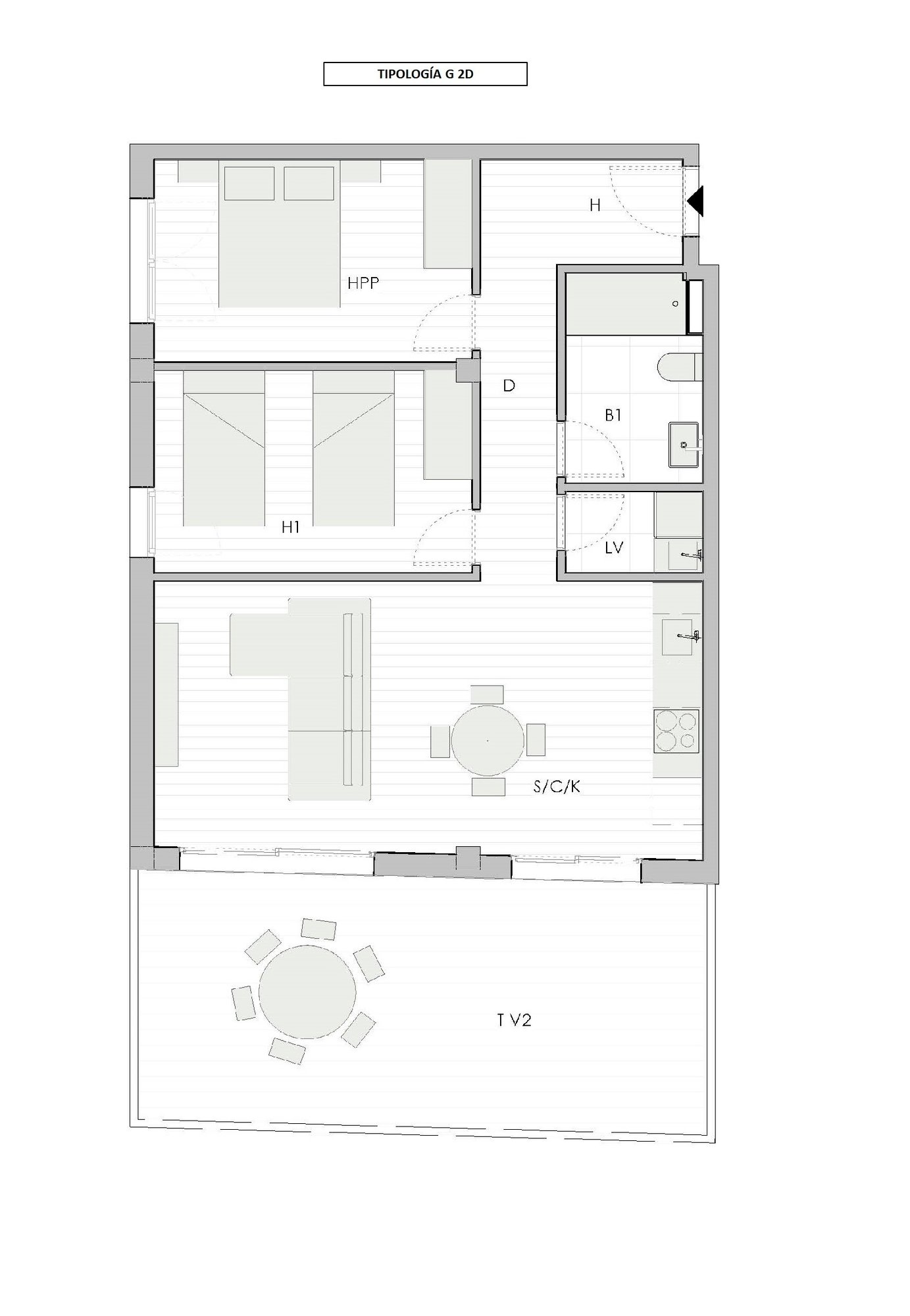
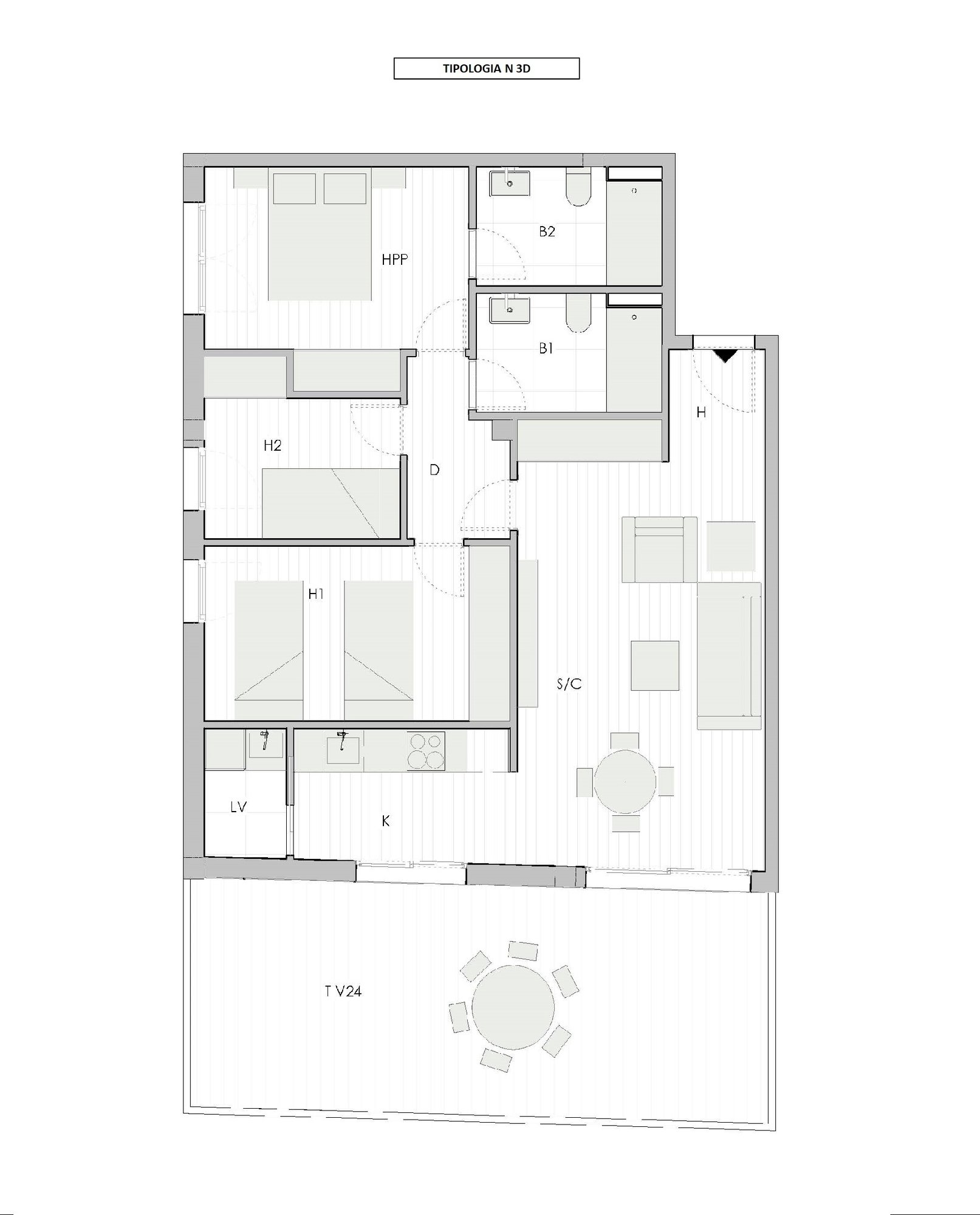
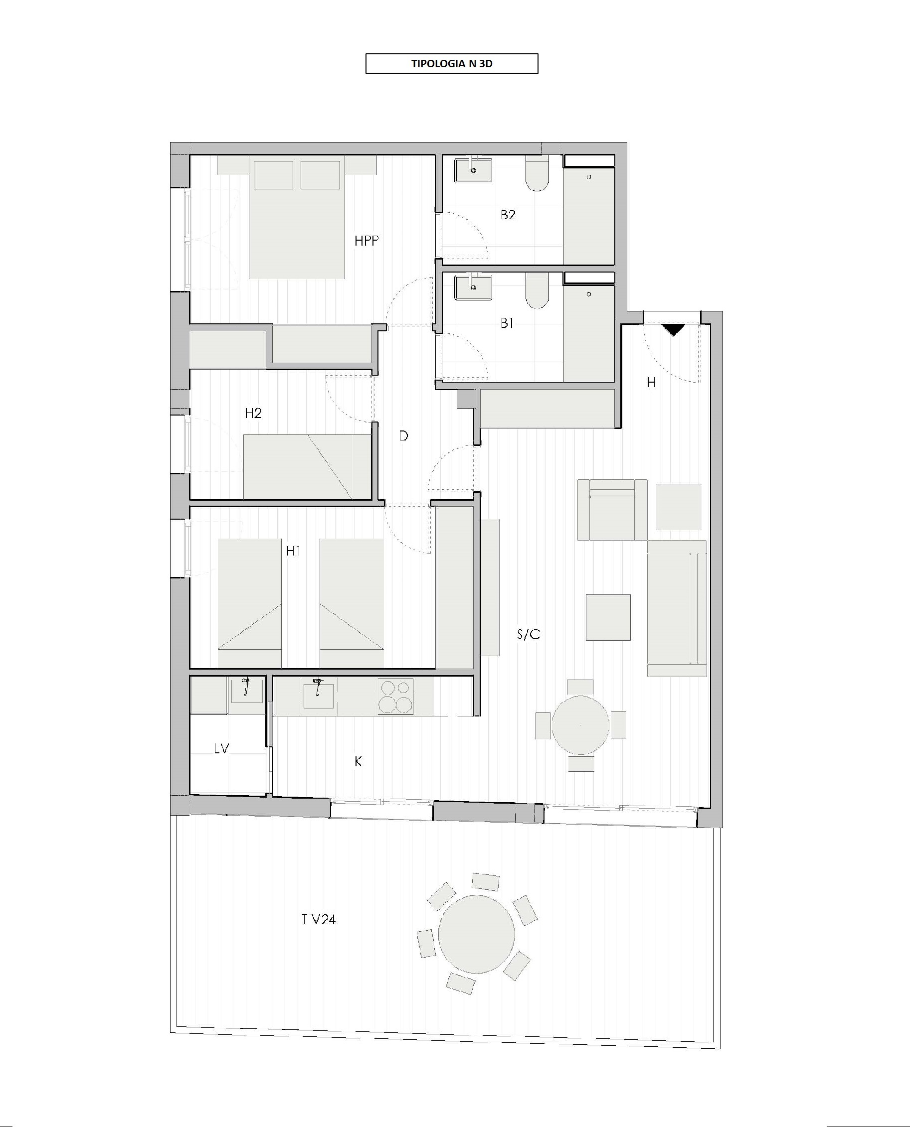
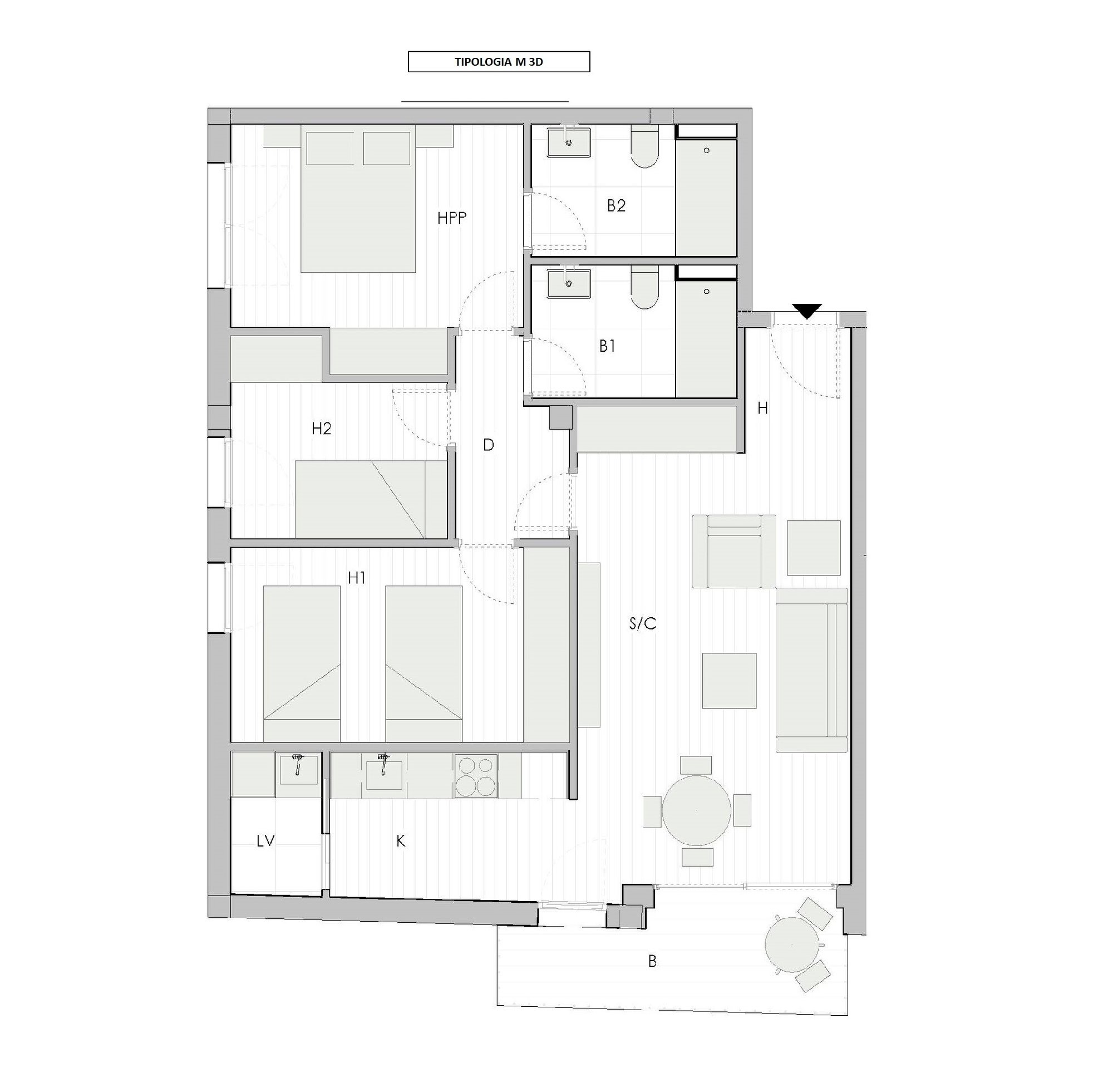
En la planta segunda, las viviendas libres presentan con un concepto más exclusivo, con un amplio bajo cubierta diáfano, con multitud de posibilidades y terrazas privativas en el ático que ofrecen vistas panorámicas y la posibilidad de disfrutar de espacios al aire libre.
Este diseño refleja un equilibrio entre funcionalidad y calidad de vida, integrando lo social y lo privado de manera armoniosa, donde cada detalle busca optimizar la experiencia residencial y potenciar la relación con el entorno.
Desde el estudio de arquitectura, creemos que este proyecto refleja muy bien como se debe entender la nueva construcción, donde el habitante, no solo disfruta de su hogar, sino de los espacios comunes que lo completan, donde la vida interactúa y se nutre unos de otros, conectando siempre con el ambiente exterior.
.
ESTE PROYECTO HA SIDO POSIBLE GRACIAS A LA UNIÓN DE PERSONAS A TRAVÉS DE LA PLATAFORMA COOPEROPEN.ORG
PROMOCIÓN TUTELADA POR:
INFORMACIÓN ADJUNTA
| DENOMINACIÓN | TIPOLOGÍA | Nº DOR | VIVIENDA | BALCÓN |
TERRAZAS | VIVIENDA | ZONAS COMUNES | VALOR ADJUDICACIÓN |
| BAJA ESCALERA A | ||||||||
| VIVIENDA 1 | N | 3 | 74,87 | 4,6 | 27,08 | 86,24 | 11,59 | 229.665,60 € |
| VIVIENDA 2 | G | 2 | 57,47 | 4,6 | 22,52 | 66,31 | 8,91 | 187.905,60 € |
| VIVIENDA 3 | A | 1 | 39,22 | 44,77 | 6,02 | 133.065,60 € | ||
| VIVIENDA 4 | F | 2 | 55,78 | 63,86 | 8,58 | 172.809,60 € | ||
| VIVIENDA 5 | K | 2 | 69,4 | 4,6 | 30.74 | 78,55 | 10,55 | 216.537,60 € |
| BAJA ESCALERA B |
||||||||
| VIVIENDA 6 | K | 2 | 69,79 | 1 | 18.68 | 78,92 | 9,49 | 208.833,60 € |
| VIVIENDA 7 | F | 2 | 55,18 | 63,18 | 7,60 | 171.355,20 € | ||
| VIVIENDA 8 | A | 1 | 41,11 | 46,75 | 5,62 | 137.601,60 € | ||
| VIVIENDA 9 | F | 2 | 62,35 | 72,26 | 8,69 | 189.945,60 € | ||
| VIVIENDA 10 | J | 2 | 74,42 | 80,67 | 9,69 | 210.345,60 € | ||
| VIVIENDA 11 | D | 2 | 50,56 | 57,33 | 6,89 | 160.281,60 € | ||
| VIVIENDA 12 | B | 1 | 41,29 | 47,28 | 5,68 | 138.033,60 € | ||
| BAJA ESCALERA C | ||||||||
| VIVIENDA 13 | B | 1 | 44,14 | 50,26 | 6,15 | 144.873,60 € | ||
| VIVIENDA 14 | D | 1 | 48,41 | 55,26 | 6,76 | 155.236,80 € | ||
| VIVIENDA 15 | J | 2 | 68,18 | 76,95 | 9,41 | 203.520,00 € | ||
| VIVIENDA 16 | F | 2 | 55,66 | 64,40 | 7,88 | 173.472,00 € | ||
| VIVIENDA 17 | A | 1 | 41,12 | 46,75 | 5,72 | 138.576,00 € | ||
| VIVIENDA 18 | F | 2 | 54,8 | 62,83 | 7,69 | 171.408,00 € | ||
| VIVIENDA 19 | K | 2 | 69,67 | 1 | 18.68 | 78,83 | 9,64 | 212.692,80 € |
| BAJA ESCALERA D | ||||||||
| VIVIENDA 20 | K | 2 | 69,56 | 4.6 | 30.75 | 78,56 | 10,52 | 217.464,00 € |
| VIVIENDA 21 | F | 2 | 55,78 | 63,86 | 8,59 | 173.760,00 € | ||
| VIVIENDA 22 | A | 1 | 39,22 | 44,77 | 6,02 | 134.016,00 € | ||
| VIVIENDA 23 | G | 2 | 58,85 | 4,6 | 23.2 | 67,76 | 9,11 | 192.168,00 € |
| VIVIENDA 24 | N | 3 | 73,36 | 4,6 | 27.54 | 84,47 | 11,36 | 226.992,00 € |
| PRIMERA ESCALERA A | ||||||||
| VIVIENDA 25 | M | 3 | 73,93 | 5,49 | 85,34 | 11,62 | 230.395,20 € | |
| VIVIENDA 26 | H | 2 | 56,45 | 5,91 | 65,35 | 8,90 | 190.560,00 € | |
| VIVIENDA 27 | C | 1 | 38,32 | 3,98 | 43,90 | 5,98 | 141.883,20 € | |
| VIVIENDA 28 | H | 2 | 54,81 | 5,31 | 63,06 | 8,58 | 184.651,20 € | |
| VIVIENDA 29 | L | 2 | 68,58 | 5,42 | 77,62 | 10,57 | 217.963,20 € | |
| PRIMERA ESCALERA B | ||||||||
| VIVIENDA 30 | L | 2 | 68,63 | 5,14 | 77,90 | 9,51 | 217.411,20 € | |
| VIVIENDA 31 | H | 2 | 54,27 | 5,37 | 62,37 | 7,61 | 183.499,20 € | |
| VIVIENDA 32 | C | 1 | 40,16 | 4,13 | 45,97 | 5,60 | 147.240,00 € | |
| VIVIENDA 33 | H | 2 | 61,3 | 6,08 | 70,6 | 8,64 | 201.499,20 € | |
| VIVIENDA 34 | I | 2 | 70,25 | 5,62 | 79,31 | 9,68 | 221.976,00 € | |
| VIVIENDA 35 | E | 1 | 49,01 | 7,93 | 55,82 | 6,81 | 176.544,00 € | |
| VIVIENDA 36 | B | 1 | 41,23 | 47,28 | 5,77 | 138.840,00 € | ||
| PRIMERA ESCALERA C | ||||||||
| VIVIENDA 37 | B | 1 | 44,11 | 50,26 | 6,25 | 145.752,00 € | ||
| VIVIENDA 38 | E | 1 | 46,96 | 7,89 | 53,88 | 6,69 | 171.528,00 € | |
| VIVIENDA 39 | I | 2 | 66,48 | 6,11 | 75,49 | 9,38 | 217.300,80 € | |
| VIVIENDA 40 | H | 2 | 54,51 | 5,62 | 63,35 | 7,87 | 184.200,00 € | |
| VIVIENDA 41 | C | 1 | 40,19 | 4,18 | 45,88 | 5,70 | 146.376,00 € | |
| VIVIENDA 42 | H | 2 | 53,89 | 5,37 | 62,03 | 7,71 | 182.112,00 € | |
| VIVIENDA 43 | L | 2 | 68,58 | 5,28 | 77,74 | 9,66 | 217.008,00 € | |
| PRIMERA ESCALERA D | ||||||||
| VIVIENDA 44 | L | 2 | 68,33 | 5,48 | 77,55 | 10,59 | 217.032,00 € | |
| VIVIENDA 45 | H | 2 | 54,81 | 5,26 | 63,03 | 8,59 | 183.955,20 € | |
| VIVIENDA 46 | C | 1 | 38,32 | 3,98 | 43,86 | 5,98 | 142.804,80 € | |
| VIVIENDA 47 | H | 2 | 57,72 | 6,62 | 66,59 | 9,08 | 195.960,00 € | |
| VIVIENDA 48 | M | 3 | 72,47 | 5,57 | 83,63 | 11,40 | 227.486,40 € | |
| SUPERFICIES UTILES | SUPERFICIES CONSTRUIDAS | |||||||
| DENOMINACIÓN | Nº DOR | TIPOLOGÍA | VIVIENDA | BALCÓN | TERRAZAS | VIVIENDA | ZONAS COMUNES | TOTAL VIVIENDA |
| DÚPLEX ESCALERA A | ||||||||
| VIVIENDA 49 | 3 | H | 99,61 | 5,49 | 53,91 | 115,8 | 16,25 | 286.318,00 |
| VIVIENDA 50 | 2 | E | 73,38 | 6,51 | 47,58 | 87,56 | 12,21 | 223.484,00 |
| VIVIENDA 51 | 1 | A | 38,38 | 3,96 | 43,96 | 5,22 | 126.474,00 | |
| VIVIENDA 52 | 2 | D | 78,21 | 5,29 | 36,37 | 91,95 | 13,09 | 231.382,75 |
| VIVIENDA 53 | 3 | J | 103,25 | 5,42 | 34,13 | 117,58 | 17,27 | 290.278,50 |
| DÚPLEX ESCALERA B | ||||||||
| VIVIENDA 54 | 3 | J | 103,57 | 5,14 | 34,77 | 117,88 | 12,60 | 290.946,00 |
| VIVIENDA 55 | 2 | D | 76,28 | 5,32 | 35,15 | 89,83 | 9,53 | 226.710,25 |
| VIVIENDA 56 | 1 | A | 40,24 | 4,13 | 45,94 | 4,97 | 130.812,75 | |
| VIVIENDA 57 | 2 | F | 96,54 | 6,09 | 67,59 | 113,02 | 12,06 | 280.132,50 |
| VIVIENDA 58 | 4 | K | 116,01 | 5,65 | 30,81 | 132,6 | 14,08 | 322.429,75 |
| VIVIENDA 59 | 1 | B | 49,08 | 7,92 | 55,86 | 6,05 | 152.951,50 | |
| VIVIENDA 60 | 3 | I | 79,42 | 26,52 | 93,48 | 9,95 | 236.989,75 | |
| PLANTA 2 Y BAJO CUBIERTA ESCALERA C | ||||||||
| VIVIENDA 61 | 3 | I | 82,45 | 26,52 | 96,71 | 10,61 | 243.842,75 | |
| VIVIENDA 62 | 1 | C | 47,02 | 7,89 | 53,93 | 5,93 | 148.657,25 | |
| VIVIENDA 63 | 4 | K | 109,20 | 6,04 | 30,81 | 125,13 | 13,74 | 307.077,25 |
| VIVIENDA 64 | 2 | G | 86,77 | 6,43 | 62,69 | 102,67 | 11,27 | 257.103,75 |
| VIVIENDA 65 | 1 | A | 40,26 | 4,16 | 45,89 | 5,04 | 130.679,25 | |
| VIVIENDA 66 | 2 | D | 75,86 | 5,35 | 35,42 | 89,56 | 9,75 | 226.154,00 |
| VIVIENDA 67 | 3 | J | 103,03 | 5,28 | 35,04 | 117,82 | 12,94 | 290.812,50 |
| PLANTA 2 Y BAJO CUBIERTA ESCALERA D | ||||||||
| VIVIENDA 68 | 3 | I | 103,29 | 5,48 | 34,32 | 117,69 | 17,12 | 290.523,25 |
| VIVIENDA 69 | 2 | D | 77,93 | 5,28 | 36,56 | 91,95 | 12,97 | 231.494,00 |
| VIVIENDA 70 | 1 | A | 38,38 | 3,94 | 43,96 | 5,22 | 126.474,00 | |
| VIVIENDA 71 | 2 | E | 75,05 | 6,62 | 48,90 | 89,20 | 12,33 | 227.133,00 |
| VIVIENDA 72 | 3 | H | 98,23 | 5,55 | 52,27 | 114,43 | 15,97 | 283.269,00 |
Características Destacadas
Certificado Energético

